| 索引號 | 1150022873397104X5/2025-00158 | 發文字號 | |
| 主題分類 | 建設規劃 | 體裁分類 | 公告公示 |
| 發布機構 | 梁平區梁山街道辦事處 | 有效性 | |
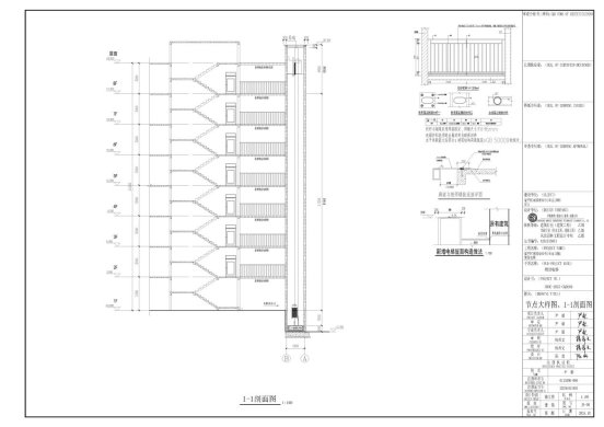
| 標題 | 重慶市梁平區梁山街道辦事處關于南園巷60號D幢(1單元)增設電梯的公示 | ||
| 成文日期 | 2025-10-23 | 發布日期 | 2025-10-23 |
| 索引號 | 1150022873397104X5/2025-00158 |
| 發文字號 | |
| 主題分類 | 建設規劃 |
| 體裁分類 | 公告公示 |
| 發布機構 | 梁平區梁山街道辦事處 |
| 有效性 | |
| 標題 | 重慶市梁平區梁山街道辦事處關于南園巷60號D幢(1單元)增設電梯的公示 |
| 成文日期 | 2025-10-23 |
| 發布日期 | 2025-10-23 |

?
?
?
?









