| 索引號 | 1150022873397104X5/2025-00154 | 發文字號 | |
| 主題分類 | 建設規劃 | 體裁分類 | 公告公示 |
| 發布機構 | 梁平區梁山街道辦事處 | 有效性 | |
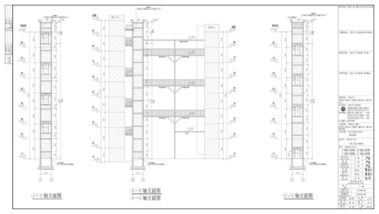
| 標題 | 重慶市梁平區梁山街道辦事處關于石馬路537號(雅豪苑)1幢11單元、2幢1單元增設電梯的公示 | ||
| 成文日期 | 2025-10-14 | 發布日期 | 2025-10-14 |
| 索引號 | 1150022873397104X5/2025-00154 |
| 發文字號 | |
| 主題分類 | 建設規劃 |
| 體裁分類 | 公告公示 |
| 發布機構 | 梁平區梁山街道辦事處 |
| 有效性 | |
| 標題 | 重慶市梁平區梁山街道辦事處關于石馬路537號(雅豪苑)1幢11單元、2幢1單元增設電梯的公示 |
| 成文日期 | 2025-10-14 |
| 發布日期 | 2025-10-14 |








----


